
«DEMAG Mobile Cranes Gepgyarto», г. Печ – обитаемая дробеструйная камера, внутрицеховая конструкция
Техническое описание:
- соответствует требованиям гигиены труда;
- соответствует требованиям по защите окружающей среды;
- размер камеры подбирается под обрабатываемое изделие;
- осуществляется полная рециркуляция абразива во время дробеструйной обработки;
- корпус камеры полностью изолирован от рабочего пространства цеха в соответствии с технологическими требованиями;
- возможна как внутрицеховая, так и наружная конструкция камеры.

«АBB Alstom», г. Будапешт – обитаемая дробеструйная камера, наружная конструкция
Теплоизоляция:
- дробеструйной камеры;
- аспирационной и пылеотделяющей системы;
- элементов конструкции и воздуховода

«DEMAG Mobile Cranes Gepgyarto», г. Печ
Фильтровентиляционная система:
- картриджная система пылеотделения типа APSZ 8 – APSZ 48 с производительностью 8 000 – 60 000 м3/час и автоматической очисткой картриджа сжатым воздухом;
- аспирационные вентиляторы;
- возврат очищенного воздуха в камеру;
- шумоизоляция воздуховода;
- простая в эксплуатации система пылесбора;
- соответствует экологическим требованиям по выбросу пыли и шумоизоляции;
- гарантированная эмиссия пыли не более 3мг/м3.
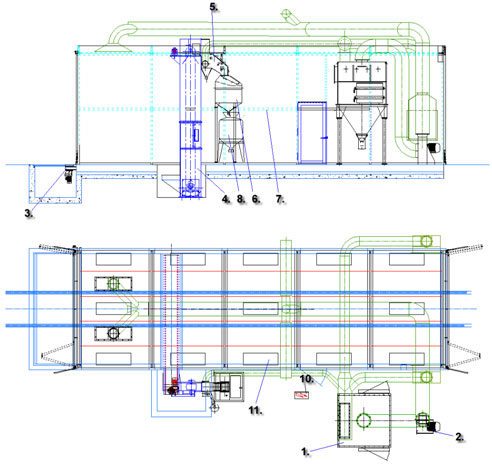
Схема размещения установки с габаритами

Составные части обитаемой дробеструйной камеры:
Корпус камеры (7) – стальная конструкция, обшитая профилированным окрашенным листом, либо тепло- и звукоизоляционными панелями.
Внутренняя защита камеры от износа – внутренние стенки камер футеруются листовой износостойкой резиной.
Система сбора абразивного материала (3) – сбор и возврат абразива в бункер для абразива.
Составные части:
- решетчатый пол, шнек или ленточный транспортер;
- ковшевой элеватор (4);
- система регенерации дроби (5);
- бункер накопитель (6).
Абразивоструйный аппарат с принадлежностями (8) – объем 60-200л, блок подачи свежего воздуха, защитные элементы, кондиционер, компрессор.
Освещение камеры (11) – равномерное освещение 500 люкс
Пылеулавливание и пылеотделение (1) - зависит от размера камеры и предусматривает систему с автоматической очисткой картриджей сжатым воздухом, с соответствующим вытяжным вентилятором (2), вытяжными панелями, элементами подачи воздуха, звукоизолированным трубопроводом.
Электрическое управление (10) – шкаф управления с необходимыми защитными элементами.