Схема выброса дроби

Техническое описание
Дробеметная установка RB-AH600/2 предназначена для очистки поверхности, удаления ржавчины и окалины со следующих материалов:
- мелких отливок из алюминия или стали
- мелких поковок из алюминия или стали
- мелких изделий, которые не могут быть обработаны навалом
- обработка мраморных и гранитных блоков для декоративных целей
Установка оснащена двумя дробеметными турбинами типа ABR-380. Они расположены над уровнем сетчатого конвейера таким образом, чтобы обеспечить оптимальное рассеивание дроби по проходному сечению обрабатываемого материала. Дробеметание производится под углом ≈70⁰ к направлению движения изделия для обеспечения обработки по всей его длине.
Турбины имеют аксиальную восьмилопастную конструкцию с гравитационным подводом дроби и с механическим предварительным ускорителем, таким образом, обеспечивается точная дозировка и установка направления выброса дроби.
Изолированная рабочая камера машины с внутренней стороны имеет покрытие из высоко–износостойкой марганцовистой стали, а другие внутренние поверхности защищены износостойкими резиновыми пластинами. Резиновое покрытие одновременно уменьшает шум машины. Сетка конвейера выполнена из высокопрочной пружинной стали, что обеспечивает продолжительный срок службы конвейера.
От случайного выброса дроби из зоны очистки на входе и выходе из машины установлены трехслойные резиновые шторки.
Закрытую и непрерывную рециркуляцию дроби обеспечивают: шнековый конвейер, ковшовый элеватор, система очистки дроби. С помощью дозировочного клапана дробь возвращается к дробеметным турбинам.
На оборудование, используемое в литейных цехах, устанавливается дополнительный магнитный барабанный сепаратор для удаления формовочного песка из циркуляции.
На выходе машина оснащена щеточно-обдувочной системой с регулируемой высотой для тщательного удаления остатков абразива с очищенной поверхности деталей.
Аспирационное и пылеотделяющее устройство машины выполнено из труб и профилированных листов из оцинкованной стали, имеет аспирационный вентилятор и картриджный пылеотделитель.
Эмиссия пыли после фильтрации не превышает 3 мг/м3.
Работа машины производится в автоматическом режиме, но на случаи сервисных работ предусмотрена возможность ручного управления.
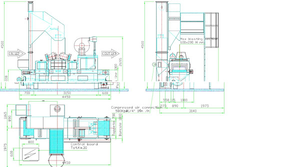
Схема размещения установки с габаритами

| ХАРАКТЕРИСТИКИ |
| Ширина прохода |
мм |
600 |
| Высота прохода |
мм |
200 |
| Мин. длина очищаемых изделий (более короткие изделия обрабатываются с помощью рамки) |
мм |
≈1000 |
|
Турбины
|
Количество |
шт |
2 |
| Тип |
|
ABR-380 |
| Диаметр |
мм |
380 |
| Частота вращения |
об/мин |
2800 |
| Выброс дроби/турбина |
кг/мин |
120 |
| Сетчатый конвейер |
|
|
| Допустимая нагрузка |
кг/м |
500 |
| Скорость (регулируется) |
м/мин |
0-4 |
|
Питание
|
Электрическое
|
Основная установка |
кВт |
25,8 |
| Аспирация |
кВт |
5,5 |
|
Cжатый воздух
|
Давление |
бар |
мин. 6 |
| Объём |
м3/ч |
10 |
| Масса загружаемой дроби |
кг |
≈800 |
| Предлагаемые размеры дроби |
мм |
0,4-1,2 |
| Мощность фильтро-вентиляционного устройства |
м3/ч |
8000 |
| Площадь фильтров |
м2 |
168 |
|
Электрические характеристики
|
Напряжение сети |
В |
3 х 400 |
|
Напряжение
управления
|
В |
220 |
| Частота тока |
Гц |
50 |