Схема выброса дроби

Техническое описание
Дробеметный барабан GH-0.3 предназначен для очистки мелких и средних отливок, поковок, штамповок и заготовок.
Установка оснащена дробеметной турбиной типа ABR-330. Турбина имеет аксиальную шестилопастную конструкцию с гравитационным подводом дроби и с механическим предварительным ускорителем, таким образом обеспечивается точная дозировка и установка направления выброса дроби. Загрузка происходит вручную или с помощью гидравлического загрузчика, обеспечивающего подъём и опрокидывание очищаемых деталей, при этом абразивный материал очищает всю их поверхность. Эластичный резиновый конвейер обеспечивает мягкую галтовку очищаемых деталей в процессе дробеметной обработки.
В целях достижения оптимальной чистоты поверхности, возможна регулировка дозы абразива, времени обработки и частоты оборота дробеметной турбины. Скорость выброса абразивного материала может быть уменьшена или увеличена путём изменения скорости вращения турбины.
Изолированная рабочая камера машины с внутренней стороны имеет покрытие из высоко–износостойкой марганцовистой стали.
Двери дают совершенную защиту от случайного выброса дроби из камеры.
Закрытую и непрерывную рециркуляцию дроби обеспечивают: шнековый конвейер, ковшовый элеватор, система очистки дроби, работающая по принципу аспирации дроби и выдувания сора, и дозировочный клапан, с помощью которого дробь возвращается к дробеметной турбине.
По окончании очистки и последующего автоматического открытия дверей, очищенные детали извлекаются из рабочей камеры путём обратного вращения барабана.
Для аспирации и сепарации образовавшейся во время очистки пыли служит картриджное пылеотделительное и пылеотводное устройство с вентилятором, шумоглушителем и трубопроводом.
Работа машины производится в автоматическом режиме, но на случаи сервисных работ предусмотрена возможность ручного управления.
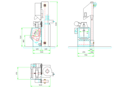
Схема размещения установки с габаритами

| ХАРАКТЕРИСТИКИ |
| Резиновый барабан |
Диаметр |
мм |
500 |
| Ширина |
мм |
630 |
| Турбины |
| Количество |
шт |
1 |
| Тип |
ABR-330 |
| Диаметр |
мм |
330 |
| Частота вращения |
об/мин |
2800 |
| Выброс дроби |
кг/мин |
80 |
| Мощность одной турбины |
кВт |
4 |
|
Обрабатываемые
детали
|
Макс. загрузка |
кг |
100 |
| Объём |
м3 |
0,04 |
| Питание |
|
Электрическое
|
Основная установка |
кВт |
5,1 |
| Аспирация |
кВт |
2,2 |
|
Cжатый воздух
|
Давление |
бар |
6 |
| Объём |
м3/ч |
6 |
| Масса загружаемой дроби |
кг |
200 |
| Предлагаемые размеры дроби |
мм |
0,4-1,2 |
| Мощность фильтро-вентиляционного устройства |
м3/ч |
1500 |
| Электрические характеристики |
| Напряжение сети |
В |
3 х 400 |
| Напряжение управления |
В |
220 |
| Частота тока |
Гц |
50 |