Схема выброса дроби

Техническое описание
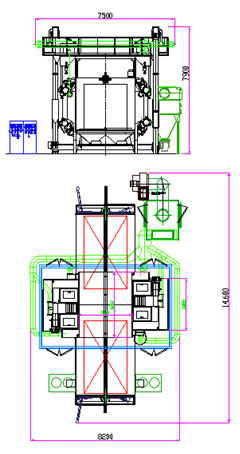
Дробеметная камера ST-2500 предназначена для очистки длинных сварных конструкций и балок.
Оборудование оснащено восьмью дробеметными турбинами типа АBR–500. Они расположены таким образом, чтобы выброс дроби выполнялся в разных плоскостях под углом, позволяя потоку дроби обработать подвешенную деталь равномерно со всех сторон.
Турбины имеют восьмилопастную конструкцию с гравитационным подводом дроби и механическим ускорителем, таким образом, обеспечивается точная дозировка и установка направления выброса дроби.
Детали, подлежащие очистке, перевозятся в камеру очистки с помощью электромеханического подвесного конвейера через многослойные резиновые шторки.
Во время цикла очистки подвеска постоянно перемещается перед турбинами.
Активная зона машины с внутренней стороны имеет покрытие из высоко-износостойкой марганцовистой стали, а другие внутренние поверхности защищены толстыми износостойкими резиновыми пластинами.
Закрытую и непрерывную рециркуляцию дроби обеспечивают: сборочный бункер со шнеком, ковшовый элеватор, и система очистки дроби, работающая по принципу аспирации дроби и выдувания сора. С помощью дозировочного клапана дробь возвращается к дробеметным турбинам.
В целях достижения оптимальной чистоты поверхности, возможна регулировка дозы и направление выброса дроби.
Размеры и форма конвейера регулируются по требованию заказчика.
Для удаления и отделения образовавшейся во время очистки пыли мы предлагаем картриджное пылеотделительное устройство APSZ в комплекте с вентилятором и необходимым трубопроводом.
Эмиссия пыли после фильтрации не превышает 2 мг/м3.
Дробеметная установка может функционировать в качестве отдельного агрегата или быть частью производственной линии по обработке поверхности.
Режим работы камеры может быть задан как постоянный, так и циклический.
Уровень шума составляет около 85 дБ (А) и может быть снижен при помощи шумоизоляции.
Работа машины производится в автоматическом режиме, но на случаи сервисных работ предусмотрена возможность ручного управления.
Схема размещения установки с габаритами

| ХАРАКТЕРИСТИКИ |
| Размеры очищаемых изделий |
| Высота |
мм |
2500 |
| Ширина |
мм |
2500 |
|
Турбины
|
| Количество |
шт |
8 |
| Тип |
|
ABR-500 |
| Диаметр |
мм |
500 |
| Частота вращения |
об/мин |
2700 |
| Выброс дроби одной турбиной |
кг/мин |
160 |
| Мощность одной турбины |
кВт |
11 |
| Конвейер |
| Допустимая нагрузка |
кг/подвеска |
2000 |
| Питание |
|
Электрическое
|
Основная установка |
кВт |
110 |
| Аспирация |
кВт |
22 |
|
Cжатый воздух
|
Давление |
бар |
6 |
| Объём |
м3/ч |
20 |
| Масса загружаемой дроби |
кг |
5000 |
| Предлагаемые размеры дроби |
мм |
0,2-1,6 |
| Мощность фильтро-вентиляционного устройства |
м3/ч |
20000 |
| Электрические характеристики |
| Напряжение сети |
В |
3 х 400 |
| Напряжение управления |
В |
110 |
| Частота тока |
Гц |
50 |