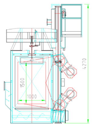
Схема выброса дроби

Техническое описание
Дробеметная камера СМ-1000 предназначена для очистки отливок, поковок и небольших сварных конструкций.
Оборудование оснащено двумя дробеметными турбинами типа АBR–380. Они расположены таким образом, чтобы выброс дроби выполнялся в разных параллельных плоскостях, позволяя потоку дроби обработать подвешенную деталь равномерно со всех сторон.
Турбины имеют аксиальную шестилопастную конструкцию с гравитационным подводом дроби и с механическим ускорителем, таким образом, обеспечивается точная дозировка и установка направления выброса дроби.
Детали, подлежащие очистке, подвешиваются на крюки, расположенные на направляющих рельсах, и вручную или опционно при помощи электропривода направляется в центр камеры в позицию очистки. Во время цикла очистки, подвеска деталей постоянно вращается перед турбинами за закрытыми дверями камеры. После завершения цикла очистки подвеска с изделиями покидает камеру и на ее место перевозится заранее подготовленная подвеска новых изделий.
Дробеметание осуществляется в изолированной дробеметной камере. Пневматические двери обеспечивают совершенную защиту от случайного выброса дроби из камеры.
Активная зона машины с внутренней стороны имеет покрытие из высоко-износостойкой марганцовистой стали.
Закрытую и непрерывную рециркуляцию дроби обеспечивают: сборочный бункер со шнеком, ковшовый элеватор, и система очистки дроби, работающая по принципу аспирации дроби и выдувания сора. С помощью дозировочного клапана дробь возвращается к дробеметным турбинам.
В целях достижения оптимальной чистоты поверхности, возможна регулировка дозы и направления выброса дроби.
Размеры и форма конвейера регулируются по требованию заказчика.
Для удаления и отделения образовавшейся во время очистки пыли мы предлагаем картриджное пылеотделительное устройство APSZ в комплекте с вентилятором и необходимым трубопроводом.
Работа машины производится в автоматическом режиме, но на случаи сервисных работ предусмотрена возможность ручного управления.
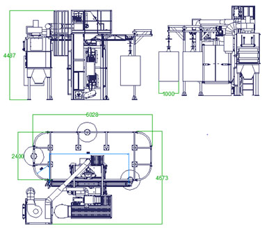
Схема размещения установки с габаритами

| ХАРАКТЕРИСТИКИ |
| Максимальные размеры подвески |
| Высота |
мм |
1500 |
| Диаметр |
мм |
1000 |
|
Турбины
|
| Количество |
шт |
2 |
| Тип |
|
ABR-380 |
| Диаметр |
мм |
380 |
| Частота вращения |
об/мин |
2600 |
| Выброс дроби одной турбиной |
кг/мин |
130 |
| Мощность одной турбины |
кВт |
7,5 |
| Конвейер |
| Допустимая нагрузка |
кг/подвеска |
500 |
| Питание |
|
Электрическое
|
Основная установка |
кВт |
22 |
| Аспирация |
кВт |
4 |
|
Cжатый воздух
|
Давление |
бар |
6 |
| Объём |
м3/ч |
7 |
| Масса загружаемой дроби |
кг |
500 |
| Предлагаемые размеры дроби |
мм |
0,2-1,6 |
| Мощность фильтро-вентиляционного устройства |
м3/ч |
4000 |
| Электрические характеристики |
| Напряжение сети |
В |
3 х 400 |
| Напряжение управления |
В |
110 |
| Частота тока |
Гц |
50 |