Схема выброса дроби

Техническое описание
Дробеметная установка RB–2500 предназначена для очистки поверхности и удаления окалины со следующих материалов:
- стального листового проката
- прутков, профилей и труб из стали
- простых сварных конструкций
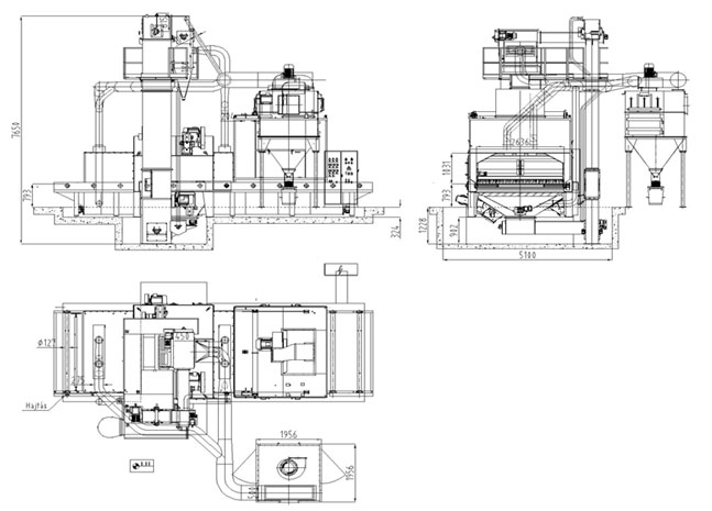
Установка снабжена шестью дробеметными турбинами типа ABR-500. Три из них расположены над уровнем рольганга, три под его уровнем таким образом, чтобы обеспечить оптимальное рассеивание дроби по проходному сечению обрабатываемого изделия. Дробеметание производится перпендикулярно направлению движения изделия.
Турбины имеют аксиальную восьмилопастную конструкцию с гравитационным подводом дроби и с механическим предварительным ускорителем, таким образом, обеспечивается точная дозировка и установка направления выброса дроби.
Изолированная рабочая камера машины с внутренней стороны имеет покрытие из высоко–износостойкой марганцовистой стали, а другие внутренние поверхности защищены износостойкими резиновыми пластинами. Резиновое покрытие одновременно уменьшает и шум машины.
Ролики рольганга защищены от активного воздействия дроби резиновым покрытием (обеспечивающим бесшумную транспортировку без проскальзывания) либо высоколегированной марганцовистой сталью, что обеспечивает их долговечность.
От случайного выброса дроби из зоны очистки на входе и выходе из машины установлены трехслойные резиновые шторки.
Закрытую и непрерывную рециркуляцию дроби обеспечивают: шнековый конвейер, ковшовый элеватор, система очистки дроби, работающая по принципу аспирации дроби и выдувания сора. С помощью дозировочного клапана дробь возвращается к дробеметным турбинам.
На выходе машина оснащена щеточно-обдувочной системой для тщательного удаления остатков абразива с очищенной поверхности деталей.
Аспирационное и пылеотделяющее устройство машины выполнено из труб и профилированных листов из оцинкованной стали, имеет аспирационный вентилятор и картриджный пылеотделитель.
Эмиссия пыли после фильтрации не превышает 3 мг/м3.
Работа машины производится в автоматическом режиме, но на случаи сервисных работ предусмотрена возможность ручного управления.
Схема размещения установки с габаритами

| ХАРАКТЕРИСТИКИ |
| Ширина прохода |
мм |
2500 |
| Габаритные размеры очищаемых изделий |
| Минимальная длина (более короткие детали обрабатываются с помощью рамки) |
мм |
≈1500 |
| Максимальная высота |
мм |
1000 |
| Турбины |
| Количество |
шт |
6 |
| Тип |
ABR-500 |
| Диаметр |
мм |
500 |
| Частота вращения |
об/мин |
2600 |
| Выброс дроби одной турбиной |
кг/мин |
150-300 |
| Рольганг |
| Допустимая нагрузка |
кг/м |
2500 |
| Скорость (регулируется) |
м/мин |
0-4 |
| Питание |
|
Электрическое
|
Основная установка |
кВт |
96/140 |
| Аспирация |
кВт |
15 |
|
Cжатый воздух
|
Давление |
бар |
min 6 |
| Объём |
м3/ч |
25 |
| Масса загружаемой дроби |
кг |
4500 |
| Предлагаемые размеры дроби |
мм |
0,4-1,6 |
| Мощность фильтро-вентиляционного устройства |
м3/ч |
16000 |
| Электрические характеристики |
| Напряжение сети |
В |
3 х 400 |
| Напряжение управления |
В |
220 |
| Частота тока |
Гц |
50 |