Техническое описание
Дробеметная установка СST-300 предназначена для очистки и удаления окалины с внешней поверхности труб, газовых баллонов и других изделий цилиндрической формы.
Оборудование оснащено двумя дробеметными турбинами типа АBR–D400. Они расположены над уровнем роликового конвейера таким образом, чтобы выброс дроби выполнялся в параллельной плоскости к направлению обработки изделия.
Турбины имеют восьмилопастную конструкцию с гравитационным подводом дроби и механическим ускорителем, таким образом, обеспечивается точная дозировка и установка направления выброса дроби.
Активная зона машины с внутренней стороны имеет покрытие из высоко-износостойкой марганцовистой стали, а другие внутренние поверхности защищены толстыми износостойкими резиновыми пластинами.
Для защиты от случайного выброса дроби из зоны очистки наружу на входе и выходе из машины вмонтированы износостойкие резиновые шторки.
Закрытую и непрерывную рециркуляцию дроби обеспечивают: сборочный бункер со шнеком, ковшовый элеватор и система очистки дроби, работающая по принципу аспирации дроби и выдувания сора. С помощью дозировочного клапана дробь возвращается к дробеметным турбинам.
В процессе очистки деталь перемещается прямолинейно по конвейеру и одновременно вращается вокруг своей оси с помощью специального роликового конвейера. Каждый ролик оснащен приводом. Скорость работы машины можно ускорить, регулируя автоматический погрузочно-разгрузочный механизм.
Для удаления и отделения образовавшейся во время очистки пыли мы предлагаем картриджное пылеотделительное устройство APSZ в комплекте с вентилятором и необходимым трубопроводом.
Эмиссия пыли после фильтрации не превышает 3 мг/м3.
Работа машины производится в автоматическом режиме, но на случаи сервисных работ предусмотрена возможность ручного управления.
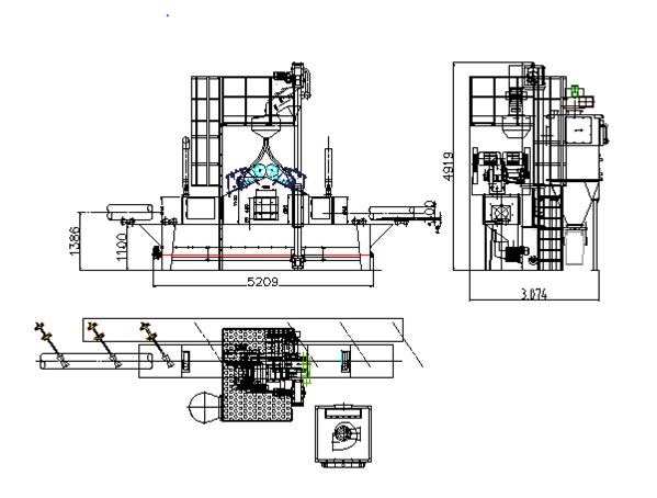
Схема размещения установки с габаритами

| ХАРАКТЕРИСТИКИ |
| Минимальный диаметр изделия |
мм |
30 |
| Минимальная длина изделия |
мм |
500 |
| Максимальный диаметр изделия |
мм |
300 |
| Турбины |
| Количество |
шт |
2 |
| Тип |
|
ABR-D400 |
| Диаметр |
мм |
400 |
| Частота вращения |
об/мин |
2900 |
| Выброс дроби одной турбиной |
кг/мин/турбина |
130-300 |
| Рольганг |
| Допустимая нагрузка |
кг/м |
200 |
| Скорость (регулируется) |
м/мин |
0-4 |
| Питание (при минимальной производительности) |
|
Электрическое
|
Основная установка |
кВт |
42 |
| Аспирация |
кВт |
7,5 |
|
Cжатый воздух
|
Давление |
бар |
мин. 6 |
| Объём |
м3/ч |
10 |
| Масса загружаемой дроби |
кг |
1000 |
| Предлагаемые размеры дроби |
мм |
0,4-1,6 |
|
Мощность фильтро-вентиляционного устройства
|
м3/ч |
5000 |
| Электрические характеристики |
| Напряжение сети |
В |
3 х 400 |
| Напряжение управления |
В |
220 |
| Частота тока |
Гц |
50 |